芦屋市六麓荘町

画像01

画像02

画像03

画像04

物件概要
物件種別 中古一戸建
物件番号 87780
販売価格 38,500万円
所在地 芦屋市六麓荘町
交通 JR東海道本線「芦屋」バス17分
バス停「日出橋」徒歩9分
阪急甲陽線「苦楽園口」徒歩46分
阪急神戸線「夙川」徒歩52分
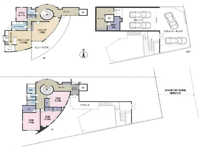
土地面積 657.85㎡
建物面積 359.17㎡
構造 SRC造3階建
間取 4LDK
用途地域 第1種低層住居専用地域
都市計画 市街化区域
地目 宅地
建ぺい率 30%
容積率 80%
国土法届出 不要
権利 所有権
取引態様 仲介
備考1 セブンイレブン徒歩31分、関西スーパー徒歩33分、コープ徒歩38分
備考2 芦屋大学附属幼稚園徒歩12分、岩園小学校徒歩33分、山手中学校徒歩51分

お問い合わせフォームへ

物件案内予約フォームへ

ページトップへ