大阪市港区三先2丁目

画像01

物件概要
物件種別 中古一戸建
物件番号 89354
販売価格 2,680万円
所在地 大阪市港区三先2丁目
交通 大阪メトロ中央線「朝潮橋」駅徒歩8分
土地面積 70.70㎡
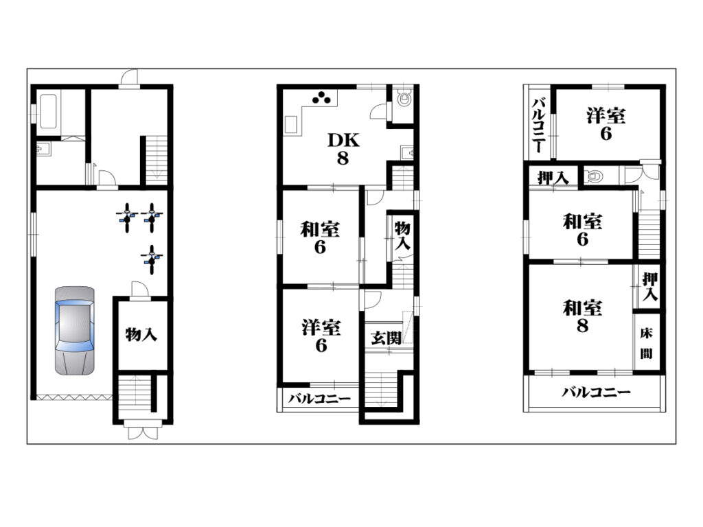
建物面積 138.91㎡
構造 木・RC造3階建
間取 5DK
用途地域 準工業地域
都市計画 市街化区域
地目 宅地
建ぺい率 60%
容積率 200%
国土法届出 不要
権利 所有権
取引態様 仲介
備考1 三先公園徒歩3分、サンディ・ライフ・ファミリーマート徒歩5分
備考2 三先幼稚園徒歩5分、三先小学校徒歩2分、港南中学校徒歩7分
備考3 ※道路持分有(地番:20番50 499.24×1628/41924)
備考4 ※契約不適合責任免責 ※隣地と基礎部共用

お問い合わせフォームへ

物件案内予約フォームへ

ページトップへ